有关电容式传感器的使用方法,以电容式压力传感器、电容式加速度传感器为例,来展示下这类传感器的用法,一起来学习下。
电容式传感器的用法
如下图:

图1,电容式压力传感器
电容式压力传感器是一种利用电容敏感元件将被测压力转换成与之成一定关系的电量输出的压力传感器。
其特点为:输入能量低,高动态响应,自然效应小,环境适应性好。
工作原理:
过程压力通过两侧或一侧的隔离膜片、灌充液传至6室的中心测量膜片。
中心膜片是一个张紧的弹性元件,对于作用于其上的两侧压力差产生相应变形位移,其位移与差压成正比,最大位移约0.1mm,这种位移转变在电容极板上形成差动电容,由电子线路把差动电容转换成二线制的4~20mA?DC信号输出。

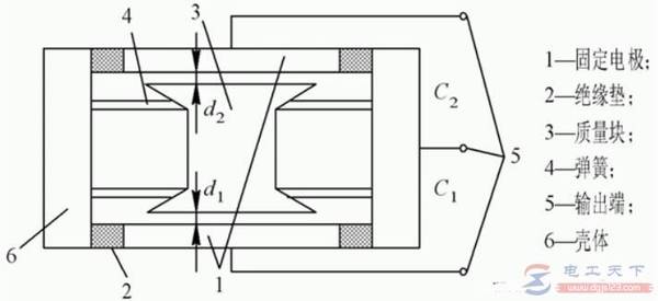
图2,电容式加速度传感器
电容式加速度传感器的特点:频率响应快、量程范围大,多采用空气或其它气体作阻尼物质。
以上就是电容式传感器的使用示例,希望对大家有所帮助。