有关保护接地与保护接零的概念,保护接地把电气设备的金属外壳用金属导线与大地可靠地连接起来,保护接零(又称接零保护)在中性点接地的系统中,将电气设备在正常情况下不带电的金属部分与零线作良好的金属连接。
保护接地与保护接零
以保护人身安全为目的,把电气设备不带电的金属外壳接地或接零,叫做保护接地及保护接零。
一、保护接地
在中性点不接地的三相电源系统中,当接到这个系统上的某电气设备因绝缘损坏而使外壳带电时,如果人站在地上用手触及外壳,由于输电线与地之间有分布电容存在,将有电流通过人体及分布电容回到电源,使人触电,如图1所示。在一般情况下这个电流是不大的。
但是,如果电网分布很广,或者电网绝缘强度显著下降,这个电流可能达到危险程度 ,这就必须采取安全措施。

图1 没有保护接地的电动机一相碰壳情况
保护接地就是把电气设备的金属外壳用足够粗的金属导线与大地可靠地连接起来。
电气设备采用保护接地措施后,设备外壳已通过导线与大地有良好的接触,则当人体触及带电的外壳时,人体相当于接地电阻的一条并联支路,如图2所示。
由于人体电阻远远大于接地电阻,所以通过人体的电流很小,避免了触电事故。

图2 装有保护接地的电动机一相碰壳情况
保护接地应用于中性点不接地的配电系统中。
二、保护接零
1、保护接零的概念
所谓保护接零(又称接零保护)就是在中性点接地的系统中,将电气设备在正常情况下不带电的金属部分与零线作良好的金属连接。
图3是采用保护接零情况下故障电流的 示意图。当某一相绝缘损坏使相线碰壳,外壳带电时,由于外壳采用了保护接零措施,因此该相线和零线构成回路,单相短路电流很大,足以使线路上的保护装置(如熔断器)迅速熔断,从而将漏电设备与电源断开,从而避免人身触电的可能性。

图3 保护接零
保护接零用于380/220V、三相四线制、电源的中性点直接接地的配电系统。
在电源的中性点接地的配电系统中,只能采用保护接零,如果采用保护接地则不能有效地防止人身触电事故。
如图4所示,若采用保护接地,电源中性点接地电阻与电气设备的接地电阻均按4Ω考虑,而电源电压为220V,那么当电气设备的绝缘损坏使电气设备外壳带电时,则两接地电阻间的电流将为:

图4 中性点接地系统采用保护接地的后果
熔断器熔体的额定电流是根据被保护设备的要求选定的,如果设备的容易较大,为了保证设备在正常情况下工作,所选用熔体的额定电流也会较大,在27.5A接地短路电流的作用下,将不断熔断,外壳带电的电气设备不能立即脱离电源,所以在设备的外壳上长期存在对地电压Ud,其值为
Ud=27.5 × 4 = 110V
显然,这是很危险的。
如果保护接地电阻大于电源中性点接地电阻,设备外壳的对地电压还要高,这时危险更大。
2、系统采用保护接零时需要注意的问题
1)、在保护接零系统中,零线起着十分重要的作用。
一旦出现零线断线,接在断线处后面一段线路上的电气设备,相当于没作保护接零或保护接地。如果在零线断线处后面有的电气设备外壳漏电,则不能构成短路回路,使熔断器熔断,不但这台设备外壳长期带电,而且使接在断线处后面的所有作保护接零设备的外壳都存在接近于电源相电压的对地电压,触电的危险性将被扩大,如图5(a)所示。
对于单相用电设备,即使外壳没漏电,在零线断开的情况下,相电压也会通过负载和断线处后面的一段零线,出现在用电设备的外壳上,如图5(b)所示。

图5 采用保护接零时零线断开的后果
零线的连接应牢固可靠、接触良好。零线的连接线与设备的连接应用螺栓压接。所有电气设备的接零线,均应以并联方式接在零线上,不允许串联。在零线上禁止安装保险丝或单独的断流开关。在有腐蚀性物质的环境中,为了防止零线的腐蚀,应在其表面涂以必要的防腐涂料。
2)、电源电性点不接地的三相四线制配电系统中,不允许用保护接零,而只能用保护接地。
在电源中性点接地的配电系统中,当一根相线和大地接触时,通过接地的相线与电源中性点接地装置的短路电流,可以使熔断器熔断,立即切断发生故障的线路。
但在中性点不接地的配电系统中,任一相发生接地,系统虽仍可照常运行,但这时大地与接地的相线针等电位,则接在零线上的用电设备外壳对地的电压将等于接地的相线从接地点到电源中性点的电压值,是十分危险的,如图6所示。

图6 中性点不接地系统采用保护接零的后果
3)、在采用保护措施时,必须注意不允许在同一系统上把一部分设备接零,另一部分用电设备接地。
在图7中,当外壳接地的设备发生碰壳漏电,而引起的事故电流烧不断熔丝时,设备外壳就带电110V,并使整个零线对地电位升高到110V,于是其他接零设备的外壳对地都有110V电位,这是很危险的。
由此可见,在同一个系统上不准采用部分设备接零、部分设备接地的混合做法。即使熔丝符合能烧断的要求,也不允许混合接法。因为熔丝在使用中经常调换,很难保证不出差错。

图7 不正确的接零保护
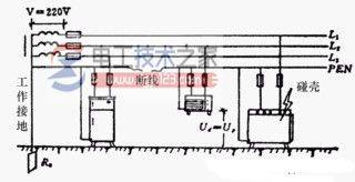
3、在采用保护接零的系统中,还要在电源中性点进行工作接地和在零线的一定间隔距离及终端进行重复接地。
在三相四线制的配电系统中,将配电变压器副边中性点通过接地装置与大地直接连接叫工作接地。将电源中性点接地,可以降低每相电源的对地电压,当人触及一相电源时,人体受到的是相电压。
而在中性点不接地系统中,当一根相线接地,人体触及另一根相线时,作用于人体的是电源的线电压,其危险性很大。同时配电变压器的中性点接地,为采用保护接零方式提供必备条件。工作接地的接地电阻不得大于4Ω,如图8所示。

图8 工作接地示意图
(a)电源中性点不接地系统 (b)电源中性点接地系统
在中性点接地的系统中,除将配电变压器中性点作工作接地外,沿零线走向的一处或多处还要再次将零线接地,叫重复接地。
重复接地的作用是当电气设备外壳漏电时可以降低零线的对地电压;当零线断线时,也可减轻触电的危险。
当设备外壳漏电时,如前所述,经过相线、零线构成了短路回路,短路电流能迅速将熔断器熔断,切断电路,金属外壳亦随之无电,避免发生触电的危险性。
但是从设备外壳漏电到熔断器熔断要经过一个很短的时间,在这短时间内,设备外壳存在对地电压,其值为短路电流在零线上的电压降。
在这很短的时间内,如果有人触及设备外壳,还是很危险的。若在接近该设备处,再加一接地装置,即实行重复接地,如图9所示,设备外壳的对地电压则可降低。

图9 重复接地
此外,如果没有重复接地,当零线某处发生断线时,(电工技术之家 www.dgjs123.com)在断线处后面的所有电气设备就处在既没有保护接零,又没有保护接地的状态。一旦有一相电源碰壳,断线处后面的零线和与其相连的电器设备的外壳都将带上等于相电压的对地电压,是十分危险的,如图10所示。

图10 无重复接地时零线断线情况
在有重复接地的情况下,当零线偶尔断线,发生电器设备外壳带电时,相电压经过漏电的设备外壳,与重复接地电阻、工作接地电阻构成回路,流过电流,如图11所示。漏电设备外壳的对地电压为相电压在重复接地电阻上的电压降,使事故的危险程度有所减轻,但对人还是危险的,因此,零线断线事故应尽量避免。

图11 有重复接地时零线断线情况
在作接零保护的线路中,架空线路的干线和分支线的终端及沿线每一公里处,零线应重复接地。电缆线路和架空线路在引入建筑物处,零线亦应重复接地,但是如无特殊要求时,距接地点不超过50M的建筑物可以不作重复接地。
三、保护接零与保护接地的适用范围 》保护接地的应用范围总结
对于以下电气设备的金属部分均应采取保护接零或保护接地措施。
1、电机、变压器、电器、照明器具、携带式及移动式用电器具等的底座和外壳;
2、电气设备的传动装置;
3、电压和电流互感器的二次绕阻;
4、配电屏与控制屏的框架;
5、室内、外配电装置的金属架、钢筋混凝土的主筋和金属围栏;
6、穿线的钢管、金属接线盒和电缆头、盒的外壳;
7、装有避雷线的电力线路的杆塔和装在配电线路电杆上的开关设备及电容器的外壳。