百科
→
装修知识
→
家装设计
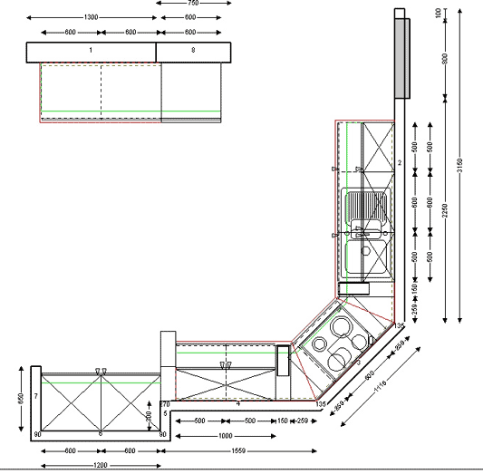
厨房设计案例(22):现代风格的U型橱柜设计
◆设计师介绍:
这是一个10平方的厨房,采用U型橱柜设计布置,储藏空间是较为宽裕的,因墙体不在同一条直线上,所以也需要合理的利用,才会不浪费空间;灶柜两边的拉篮可以放各式调料瓶;抽屉中的刀叉盘可以把餐具收纳得干干净净;橱柜门板选用现代风格的门板,显得整洁、大方。
◆业主点评:
5口之家,三代同堂家庭,全家人都爱吃家里的饭,父母的厨艺也不错,人多东西也多,所以储藏空间一定要充裕。
厨房设计案例:现代风格的U型橱柜设计
厨房设计案例:现代风格的U型橱柜设计
相关文章:
·
家居装修设计的美学原则
·
厨房设计案例(21):开放式古典风格U型橱柜设...
·
厨房设计案例(20):古典风格的L型橱柜设计
·
厨房设计案例(19):中档的U型橱柜设计
·
厨房设计案例(18):中档的L型橱柜设计
·
厨房设计案例(17):经济实用的开放式橱柜设...
·
厨房设计案例(15):简单实用的I型橱柜设计
·
厨房设计案例(16):便宜实用的I型橱柜设计
·
不同风格的卧室装修设计 让家与众不同(图)
·
厨房设计案例(14):狭长型橱柜设计
·
厨房设计案例(23):注重烹饪功能的L型橱柜设...
·
厨房设计案例(24):开放式厨房与客厅的结合
·
厨房设计案例(25):小型用餐区的橱柜设计
·
厨房设计案例(26):带用餐区的橱柜设计
·
厨房设计案例(27):开放式厨房橱柜设计
·
厨房设计案例(28):坡顶厨房的L型橱柜设计
·
怎样在小户型空间里设计出儿童房?
·
装修大讲堂:厨房装修需注意的八个要点(图)
·
儿童房的装修设计需注意几个要点
·
现代个性化客厅设计装饰技巧
·
小空间大作用,巧妙设计让飘窗“飘
·
书房装修设计——雅、序、明、静
·
取舍有“道” 家庭装修吊顶别入误
·
电视背景墙的装修设计及流行做法
·
小户型房屋装修布置与设计原则