百科
→
装修知识
→
家装设计
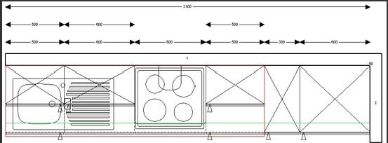
厨房设计案例(15):简单实用的I型橱柜设计
设计师介绍:
该厨房为3米长度的狭长厨房,采用简单实用的I型橱柜布置方案,是价格较为经济的橱柜布置方案;整套橱柜柜体主要以实惠的开门柜为主。橱柜门板选用外观大方,但价格又不太贵的门板。
厨房设计案例:简单实用的I型橱柜设计
厨房设计案例:简单实用的I型橱柜设计
相关文章:
·
厨房设计案例(16):便宜实用的I型橱柜设计
·
不同风格的卧室装修设计 让家与众不同(图)
·
厨房设计案例(14):狭长型橱柜设计
·
厨房设计案例(13):异型橱柜设计
·
厨房设计案例(12):不规则橱柜设计
·
厨房设计案例(11):岛型橱柜设计 清洗用餐在...
·
厨房设计案例(10):岛型橱柜设计 烹饪休闲在...
·
厨房设计案例(9):岛型橱柜设计 随意休闲在...
·
厨房设计案例(8):个性的I型橱柜设计
·
厨房设计案例(7):简单但功能齐全的I型橱柜...
·
厨房设计案例(17):经济实用的开放式橱柜设...
·
厨房设计案例(18):中档的L型橱柜设计
·
厨房设计案例(19):中档的U型橱柜设计
·
厨房设计案例(20):古典风格的L型橱柜设计
·
厨房设计案例(21):开放式古典风格U型橱柜设...
·
家居装修设计的美学原则
·
厨房设计案例(22):现代风格的U型橱柜设计
·
厨房设计案例(23):注重烹饪功能的L型橱柜设...
·
厨房设计案例(24):开放式厨房与客厅的结合
·
厨房设计案例(25):小型用餐区的橱柜设计
·
小空间大作用,巧妙设计让飘窗“飘
·
书房装修设计——雅、序、明、静
·
取舍有“道” 家庭装修吊顶别入误
·
电视背景墙的装修设计及流行做法
·
小户型房屋装修布置与设计原则