百科
→
装修知识
→
家装设计
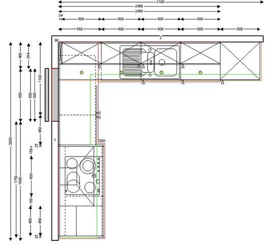
厨房设计案例(23):注重烹饪功能的L型橱柜设计
设计师介绍:
注重烹饪功能,除了灶具,脱排及烤箱配置要全面些之外,橱柜下柜左右两侧都设计了一个调味拉篮,烹饪时可以方便地拿取各种调味料。左侧设计了5抽屉下柜,可以放置各种餐具,取用也比较方便。右侧设计一个双抽双开门的下柜,可以放高低不一,大小一不的锅具。灶具前方的挂钩,烹饪时能挂常用的一些厨房用品。
厨房设计案例:注重烹饪功能的L型橱柜设计
厨房设计案例:注重烹饪功能的L型橱柜设计
相关文章:
·
厨房设计案例(22):现代风格的U型橱柜设计
·
家居装修设计的美学原则
·
厨房设计案例(21):开放式古典风格U型橱柜设...
·
厨房设计案例(20):古典风格的L型橱柜设计
·
厨房设计案例(19):中档的U型橱柜设计
·
厨房设计案例(18):中档的L型橱柜设计
·
厨房设计案例(17):经济实用的开放式橱柜设...
·
厨房设计案例(15):简单实用的I型橱柜设计
·
厨房设计案例(16):便宜实用的I型橱柜设计
·
不同风格的卧室装修设计 让家与众不同(图)
·
厨房设计案例(24):开放式厨房与客厅的结合
·
厨房设计案例(25):小型用餐区的橱柜设计
·
厨房设计案例(26):带用餐区的橱柜设计
·
厨房设计案例(27):开放式厨房橱柜设计
·
厨房设计案例(28):坡顶厨房的L型橱柜设计
·
怎样在小户型空间里设计出儿童房?
·
装修大讲堂:厨房装修需注意的八个要点(图)
·
儿童房的装修设计需注意几个要点
·
现代个性化客厅设计装饰技巧
·
不规则的房型如何装修设计?
·
小空间大作用,巧妙设计让飘窗“飘
·
书房装修设计——雅、序、明、静
·
取舍有“道” 家庭装修吊顶别入误
·
电视背景墙的装修设计及流行做法
·
小户型房屋装修布置与设计原则